Porzione di bifamiliare in vendita

Capena, Via di scoranello
€ 210.000
4 locali 4 locali
90 Mq 90 Mq
2 bagni 2 bagni

Porzione di bifamiliare in vendita

Capena, Via di scoranello

Descrizione annuncio

Nel verde e nella quiete di Capena, adiacente alla zona Scoranello, c’è un luogo che sa di casa fin dal primo sguardo.

All’interno di un residence riservato, immerso nella tranquillità e circondato da spazi verdi e giochi per bambini, sorge questa graziosa villa su un unico livello, dove ogni ambiente è pensato per vivere con serenità, comfort e armonia.

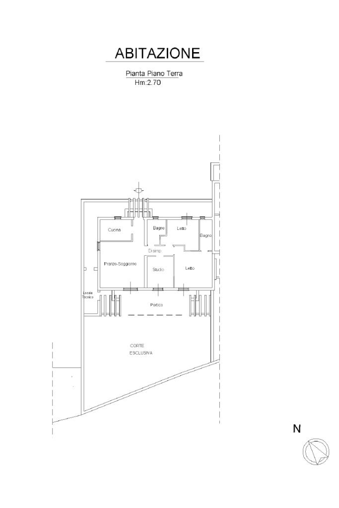
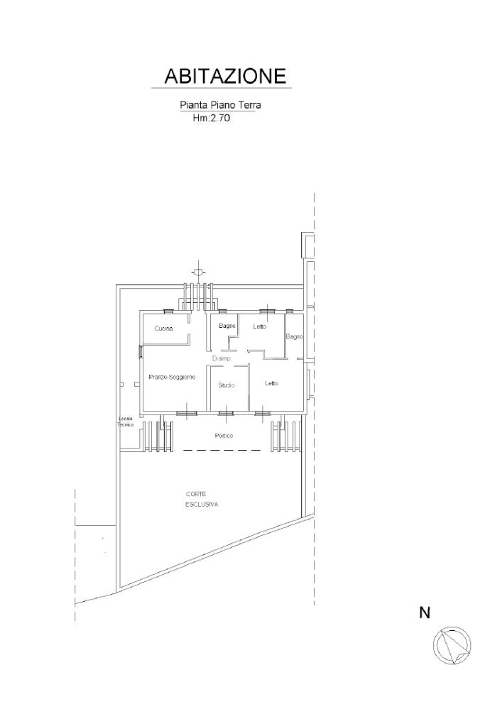
L’ingresso accompagna verso un salone caldo e accogliente, dominato dal camino, cuore della casa e teatro delle serate d’inverno, delle chiacchiere in famiglia e dei momenti di condivisione. Le grandi aperture regalano luce naturale e conducono dolcemente verso il portico e il giardino privato, uno spazio intimo dove respirare, rilassarsi, far giocare i bambini, organizzare pranzi all’aperto e vivere il tempo con lentezza.

La cucina, raccolta e funzionale, è il luogo dove nascono i profumi delle giornate quotidiane, mentre la zona notte regala privacy e tranquillità: due camere singole, una camera matrimoniale con bagno privato e un secondo bagno a servizio della casa, per garantire comfort e praticità a tutta la famiglia.

All’esterno, il giardino, con portico, diventa un vero prolungamento dell’abitazione: uno spazio da vivere, da personalizzare, da trasformare nel proprio angolo di pace.

La proprietà è completata da quattro posti auto, un locale tecnico adibito come lavanderia, rimessa per gli attrezzi e un pozzo per l’irrigazione, dettagli che raccontano una casa pensata per essere vissuta davvero, non solo abitata.

Una dimora che unisce la tranquillità della natura alla comodità dei collegamenti, vicina ai servizi, alla via Tiberina e allo svincolo autostradale di Castelnuovo di Porto, perfetta per chi sogna una vita più lenta, autentica e a misura di famiglia.

Non è solo una casa.
È un nuovo modo di vivere

Mostra tutto

Nelle vicinanze

Ricariche auto elettriche Ricariche auto elettriche
Fiano Romano Tiberina | EnelX
2,3 Km
Farmacia Farmacia
Farmacia Comunale
1,0 Km
Farmacia Lapucci
2,3 Km
Farmacia
2,7 Km
Supermercati Supermercati
Supermercati
1,4 Km
Negozi Negozi
io Bimbo
1,3 Km
Noisport
1,4 Km
Zero Gradi
2,2 Km
Negozi
2,8 Km
Ristoranti Ristoranti
Trattoria Paoletto
600 m
Duecento grammi
870 m
Old Wild West
960 m
Agorà
1,3 Km
Chef Express Feronia
1,9 Km
Mostra tutto

Caratteristiche

Rif.:
61178469
Piano:
Basso di 1
Totale piani:
1
Terrazzi:
1
Camere da letto:
3
Arredamento:
Assente
Mostra tutto
Prezzo Prezzo
€ 210.000
Rata mutuo Rata mutuo
€ 980 / mese
Spese annue Spese annue
€ 480
Proponi il tuo prezzoProponi il tuo prezzo

Classe Energetica

D
D
D
D
D
D
D
D
D
EP globale non rinnovabile:
126.35 kW h/m² anno
EP globale rinnovabile:
3.50 kW h/m² anno
EP invernale del fabbricato:
EP estiva del fabbricato:
Anno di costruzione:
2007
Riscaldamento:
Autonomo
Tipo impianto:
A radiatori
Tipo alimentazione:
Metano

Ti interessa visionare l'immobile?

Fissa un appuntamento  Fissa un appuntamento

Richiedi informazioni

Clicca su Leggi per aprire l'informativa
* Questi campi sono obbligatori

Calcola il tuo mutuo

Semplice e senza impegno
Anticipo

( % )
Mutuo

( % )

pochi semplici passi

inserisci i tuoi dati
Questionario completato
Grazie per aver richiesto un appuntamento senza impegno con un nostro Consulente del Credito e Assicurativo.

Hai inserito correttamente tutti i dati necessari e a breve riceverai una e-mail con un link da convalidare per inviare i tuoi dati.
Affiliato
Studio Capena Srl
Viale A. Gramsci, 4 00060 Capena (RM)
Viale A. Gramsci, 4 00060 Capena (RM)
Zona: Capena
Mostra su mappa
Orari: dal Lun al Ven 9:00-13:00 16:00-20:00 Sabato 9:00-13:00
Affiliato
Studio Capena Srl
Viale A. Gramsci, 4 00060 Capena (RM)

2026 Tecnocasa Franchising S.p.A. - P. IVA 08365160152 - Via Monte Bianco 60/A 20089 Rozzano (MI). Ogni agenzia ha un proprio titolare ed è autonoma. Privacy policy | Policy utilizzo | Cookie policy