Quadrilocale in vendita

Capena, Via le piane
€ 135.000
Prezzo aggiornato
4 locali 4 locali
100 Mq 100 Mq
2 bagni 2 bagni

Quadrilocale in vendita

Capena, Via le piane

Descrizione annuncio

A Capena, in una zona tranquilla e comoda da vivere, a pochi passi dal centro e da tutti i servizi essenziali – scuole, farmacia, fermate dell’autobus e poste – si trova questo appartamento che sa di famiglia e comfort.

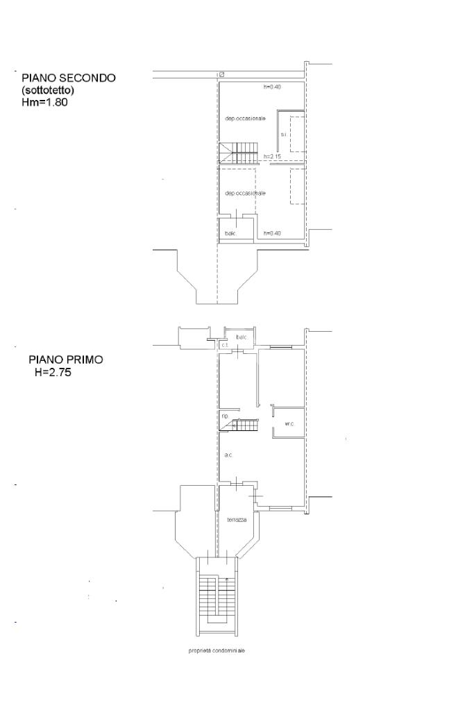
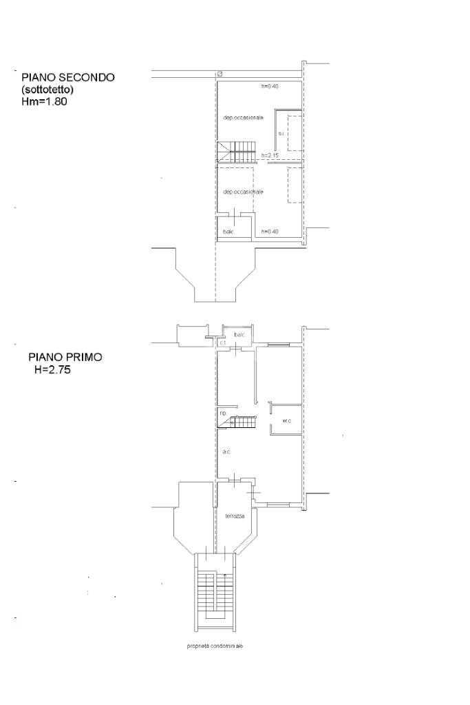
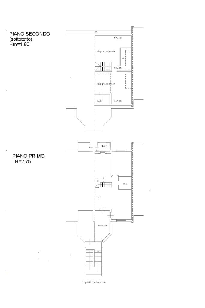
La casa si sviluppa su due livelli, con ingresso Semi-indipendente che garantisce privacy e autonomia. Appena si sale al primo piano, si viene accolti da un salone luminoso, dove il camino diventa il cuore dell’ambiente, perfetto per creare atmosfera nelle serate d’inverno. Qui trova spazio anche un angolo cottura, funzionale e ben integrato nella zona giorno.

Sempre sullo stesso piano si trovano una camera matrimoniale e una camera singola, ideali per una famiglia o per chi desidera una stanza da dedicare agli ospiti o allo smart working. Il bagno con vasca, ripostiglio, due spazi esterni , un balcone e un terrazzino Che regalano luce e aria, permettendo di vivere momenti di relax all’aperto.

Salendo al secondo livello, si apre un gradevole ambiente mansardato, con un disimpegno che conduce a un locale sottotetto utilizzabile come studio, stanza hobby o guardaroba. Qui troviamo anche una seconda camera matrimoniale con armadi a muro e con terrazzino riservato e un bagno privato, una piccola suite raccolta e luminosa.

A completare la proprietà ci sono tre cantine di circa 10 mq ciascuna, uno spazio davvero utile per chi ama tenere tutto in ordine o cerca ambienti supplementari per attività personali. Non manca il posto auto scoperto, all’interno di un’area condominiale chiusa da cancello elettrico.

Una soluzione completa, accogliente e funzionale, perfetta per chi desidera vivere la comodità del paese senza rinunciare alla tranquillità e agli spazi.

Mostra tutto

Nelle vicinanze

Trasporto pubblico Trasporto pubblico
Trasporto pubblico
930 m
Scuole Scuole
Istituto Comprensivo Capena
350 m
Scuole
3,0 Km
Supermercati Supermercati
Conad City
580 m
Negozi Negozi
Central Market
590 m
Negozi
2,8 Km
Ristoranti Ristoranti
Big Alì - Pizza Pasta & Grill
530 m
Pizza e sfizi
560 m
La taverna dei viaggiatori
590 m
Il Giardino degli Ulivi
1,5 Km
Ristoranti
2,8 Km
Mostra tutto

Caratteristiche

Rif.:
61123883
Piano:
2 di 3 (Piano alto)
Posti auto:
1
Balconi:
2
Terrazzi:
1
Camere da letto:
3
Mostra tutto
Prezzo Prezzo
€ 135.000
Rata mutuo Rata mutuo
€ 622 / mese
Spese annue Spese annue
€ 660
Proponi il tuo prezzoProponi il tuo prezzo

Classe Energetica

D
D
D
D
D
D
D
D
D
EP globale non rinnovabile:
1.00 kW h/m² anno
EP globale rinnovabile:
1.00 kW h/m² anno
EP invernale del fabbricato:
EP estiva del fabbricato:
Anno di costruzione:
2000
Riscaldamento:
Autonomo
Tipo impianto:
A radiatori
Tipo alimentazione:
Metano

Prezzo ridotto di €1 (3%%)

Ti interessa visionare l'immobile?

Fissa un appuntamento  Fissa un appuntamento

Richiedi informazioni

* Questi campi sono obbligatori

Calcola il tuo mutuo

Semplice e senza impegno
Anticipo

( % )
Mutuo

( % )

pochi semplici passi

inserisci i tuoi dati
Questionario completato
Grazie per aver richiesto un appuntamento senza impegno con un nostro Consulente del Credito e Assicurativo.

Hai inserito correttamente tutti i dati necessari e a breve riceverai una e-mail con un link da convalidare per inviare i tuoi dati.
Affiliato
Studio Capena Srl
Viale A. Gramsci, 4 00060 Capena (RM)
Viale A. Gramsci, 4 00060 Capena (RM)
Zona: Capena
Mostra su mappa
Orari: dal Lun al Ven 9:00-13:00 16:00-20:00 Sabato 9:00-13:00
Affiliato
Studio Capena Srl
Viale A. Gramsci, 4 00060 Capena (RM)

2025 Tecnocasa Franchising S.p.A. - P. IVA 08365160152 - Via Monte Bianco 60/A 20089 Rozzano (MI). Ogni agenzia ha un proprio titolare ed è autonoma. Privacy policy | Policy utilizzo | Cookie policy