5 locali in vendita

Capena, Via Morlupo
€ 220.000
5 locali 5 locali
135 Mq 135 Mq
2 bagni 2 bagni

5 locali in vendita

Capena, Via Morlupo

Descrizione annuncio

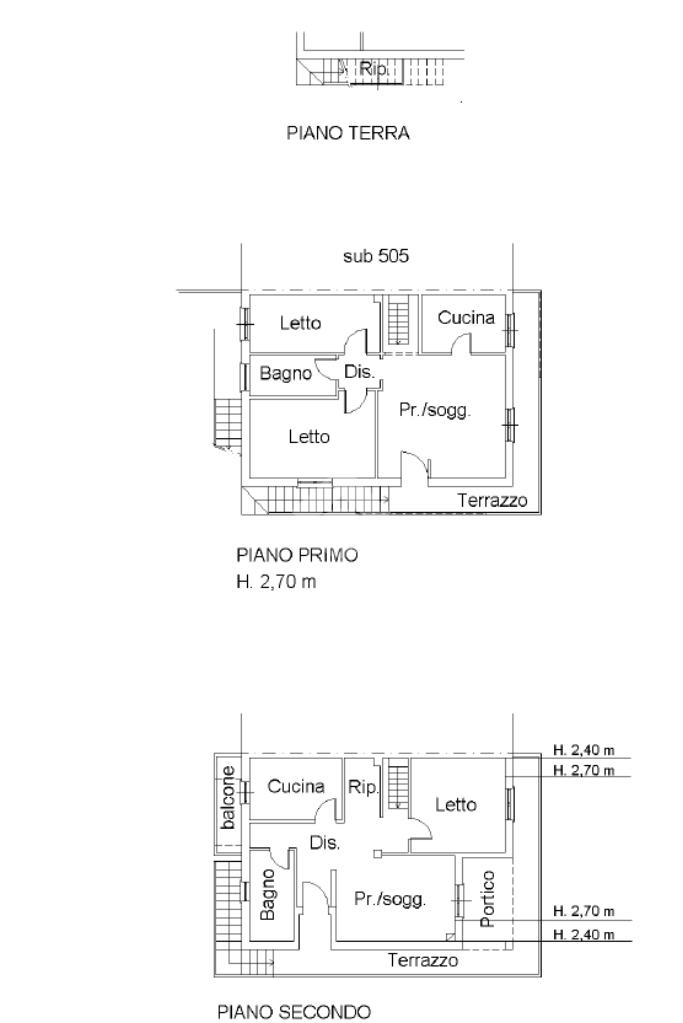
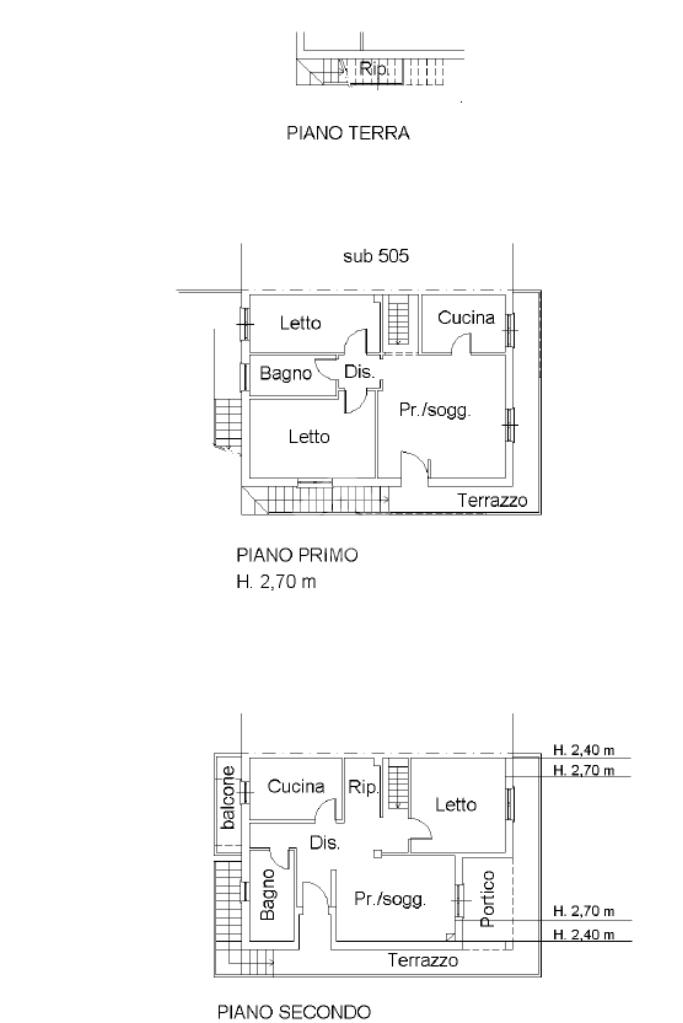
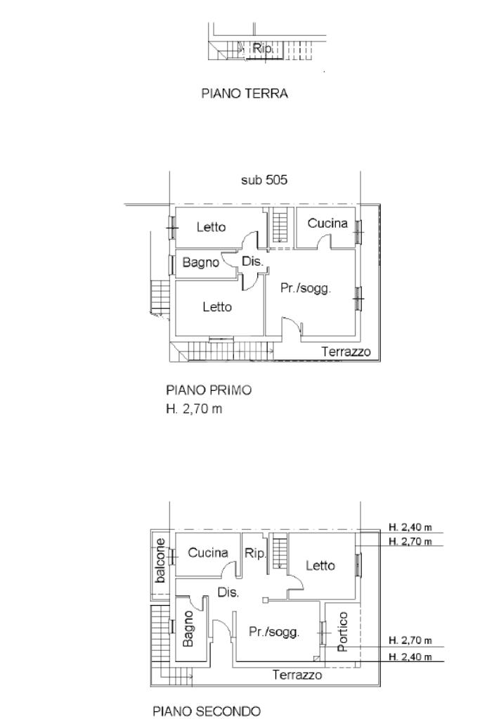
Capena – Casa indipendente con terrazzo panoramico e ampi spazi

Immagina di vivere nel cuore di Capena, a due passi da tutti i servizi essenziali – farmacia, supermercati, scuole e fermate degli autobus – senza rinunciare alla privacy e alla comodità di una casa indipendente.

Questa proprietà, di circa 150 mq disposti su due livelli, accoglie con ambienti luminosi e panoramici, perfetti per chi cerca una soluzione spaziosa e versatile.

Al primo piano troviamo un soggiorno con accesso ad un balcone che corre su due lati, ideale per godere della luce naturale durante tutto il giorno. Una cucina pratica, una camera matrimoniale, una cameretta e un bagno con doccia completano il piano, offrendo già tutto il necessario per una vita familiare confortevole.

Salendo al secondo piano si respira un’atmosfera più intima e conviviale: il soggiorno con camino diventa il cuore della casa, con uscita su un ampio terrazzo vivibile e panoramico, perfetto per pranzi all’aperto o serate con amici. La cucina con balcone, una camera matrimoniale, ripostiglio e un bagno con doccia rendono questo piano un vero e proprio appartamento indipendente.

A completare la proprietà troviamo un ampio box triplo di circa 70 mq, con doppio ingresso, che oggi viene sfruttato anche come spazio di servizio.

Un dettaglio non da poco: grazie al doppio ingresso e alle scale esterne, l’immobile si presta facilmente ad essere diviso in due appartamenti indipendenti, una soluzione ideale per chi desidera ospitare due nuclei familiari o coniugare casa e investimento.

Tra le dotazioni: grate, zanzariere, predisposizione per condizionatori su entrambi i piani e per l’allarme, autoclave con cisterna di 1500 litri, per vivere la casa in totale tranquillità e comfort.

Una casa versatile, luminosa e con spazi esterni vivibili, pronta ad accogliere nuove storie.

Mostra tutto

Nelle vicinanze

Trasporto pubblico Trasporto pubblico
Trasporto pubblico
220 m
Scuole Scuole
Istituto Comprensivo Capena
620 m
Scuole
2,4 Km
Farmacia Farmacia
Farmacia Comunale
2,7 Km
Supermercati Supermercati
Conad City
180 m
Margherita Conad
2,9 Km
Negozi Negozi
Central Market
450 m
Le Due Rose
3,0 Km
Negozi
3,0 Km
Ristoranti Ristoranti
Big Alì - Pizza Pasta & Grill
340 m
La taverna dei viaggiatori
450 m
Pizza e sfizi
460 m
Il Giardino degli Ulivi
2,2 Km
Le Caverne del Norcino
2,7 Km
Mostra tutto

Caratteristiche

Rif.:
61119184
Piano:
1 di 2 (Piano su più livelli)
Box:
1
Balconi:
2
Terrazzi:
1
Camere da letto:
3
Mostra tutto
Prezzo Prezzo
€ 220.000
Rata mutuo Rata mutuo
€ 1.049 / mese
Spese annue Spese annue
€ 0
Proponi il tuo prezzoProponi il tuo prezzo

Classe Energetica

E
E
E
E
E
E
E
E
E
EP globale non rinnovabile:
158.50 kW h/m² anno
EP globale rinnovabile:
6.01 kW h/m² anno
EP invernale del fabbricato:
EP estiva del fabbricato:
Anno di costruzione:
1995
Riscaldamento:
Autonomo
Tipo impianto:
A radiatori
Tipo alimentazione:
Metano

Ti interessa visionare l'immobile?

Fissa un appuntamento  Fissa un appuntamento

Richiedi informazioni

Clicca su Leggi per aprire l'informativa
* Questi campi sono obbligatori

Calcola il tuo mutuo

Semplice e senza impegno
Anticipo

( % )
Mutuo

( % )

pochi semplici passi

inserisci i tuoi dati
Questionario completato
Grazie per aver richiesto un appuntamento senza impegno con un nostro Consulente del Credito e Assicurativo.

Hai inserito correttamente tutti i dati necessari e a breve riceverai una e-mail con un link da convalidare per inviare i tuoi dati.
Affiliato
Studio Capena Srl
Viale A. Gramsci, 4 00060 Capena (RM)
Viale A. Gramsci, 4 00060 Capena (RM)
Zona: Capena
Mostra su mappa
Orari: dal Lun al Ven 9:00-13:00 16:00-20:00 Sabato 9:00-13:00
Affiliato
Studio Capena Srl
Viale A. Gramsci, 4 00060 Capena (RM)

2026 Tecnocasa Franchising S.p.A. - P. IVA 08365160152 - Via Monte Bianco 60/A 20089 Rozzano (MI). Ogni agenzia ha un proprio titolare ed è autonoma. Privacy policy | Policy utilizzo | Cookie policy